Intervención final















EPH 0623

PLAZA COLON, MADRID

Proyecto y dirección facultativa de implantación de instalación provisional en espacio público urbano.
Stand de marca.

EL ENCARGO

La implantación de un punto de promoción dentro de un evento a realizarse en la Plaza Colón, Madrid para AMM Advertising P.P, s.l

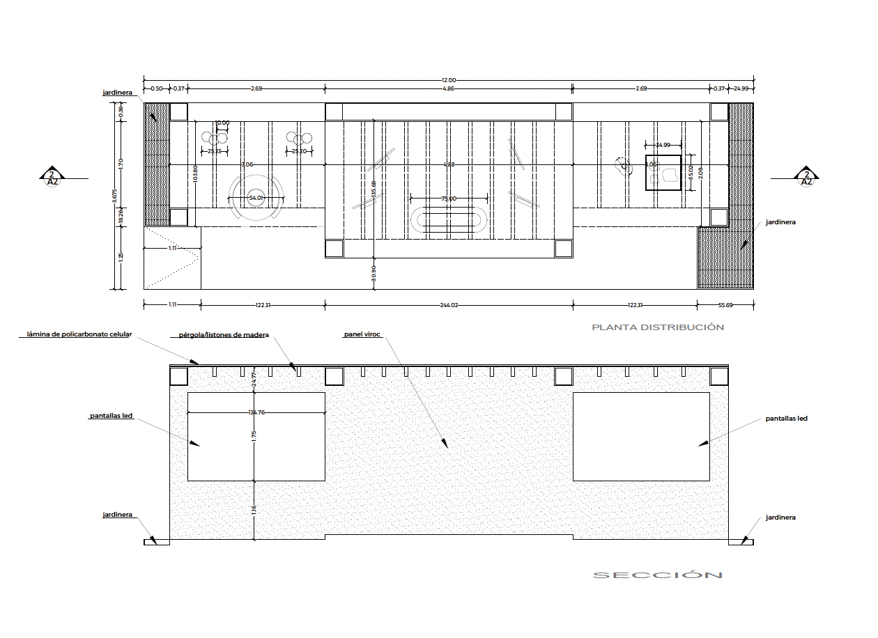
PROPUESTA

El proyecto se concibe como un volumen de 41m2 con tres espacios demarcados por desnivel de un peldaño(15cm.) y los pilares de hasta un máximo 3. 35m. de altura en que lo limitan, un espacio central y dos laterales a los que se accede a través de rampas y/o peldaño, estos espacios se conforman de la siguiente manera:

Espacio central con superficie ocupada de 18m2, con mostrador corporativo rodeado por cuatro paneles verticales expositores de madera que albergan una balda cada uno. Espacio que tiene como fondo una jardinera vertical cubierto con listones/pérgola de madera donde también hay vegetación colgante y los focos de luz.

Espacio lateral derecho con una superficie ocupada de 11m2, con pared de fondo de panel de cemento y una pantalla de videos donde se encuentra un cubo expositor de cristal y maniquí, también cubierto con listones/pérgola de madera, vegetación colgante y los focos de luz.

Espacio lateral izquierdo con una superficie ocupada de 11 m2, con pared de fondo de panel de cemento y una pantalla de videos donde se encuentran grupos de expositores cilíndricos, también cubierto con listones/pérgola de madera, vegetación colgante y los focos de luz.

La intervención se plantea como espacios fluidos con el exterior, inicialmente sin cubierta, pero debido a las condiciones climáticas que prevén lluvia para el día del evento se añade al diseño una lámina de policarbonato celular transparente.



CONTACTO

Compartir



This site is registered on wpml.org as a development site. Switch to a production site key to remove this banner.